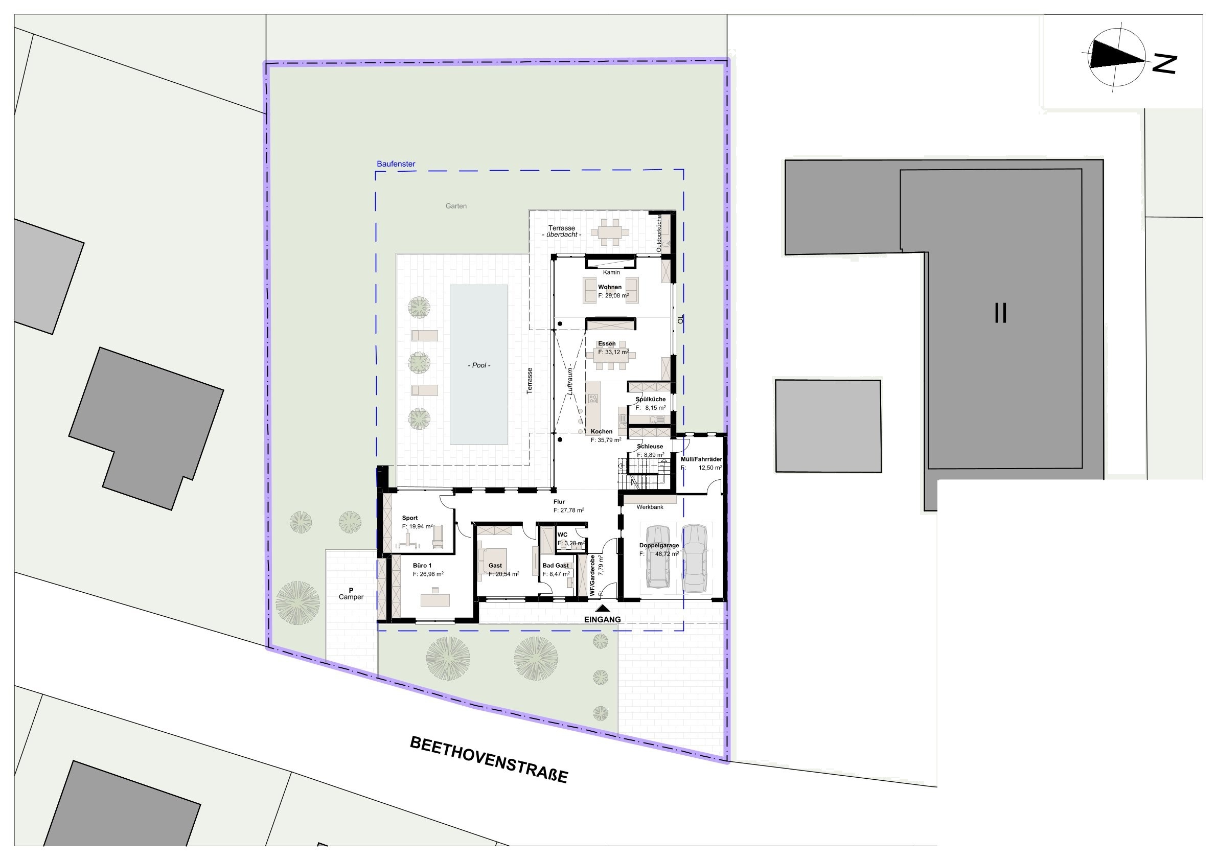
Neubau Wohnhaus mit Doppelgarage in Langenlonsheim < Zur Übersicht >

  • Neubau Wohnhaus mit Doppelgarage in Langenlonsheim 1
  • Neubau Wohnhaus mit Doppelgarage in Langenlonsheim 2

Beschreibungstext

Neubau Wohnhaus mit Doppelgarage in Langenlonsheim

LEISTUNGEN:

Entwurf,Bauplanung,Ausschreibung und Bauleitung

KUNDE:

Privat

JAHR:

2025